Монтаж автономного водопровода своими руками
Если выбирать колодец или скважину глубиной более 20 метров, то первый вариант недорогой, но вода не всегда пригодна для питья. Потребуется устанавливать фильтры, которые нуждаются в периодическом обслуживании. Второй вариант лучше, хотя и дороже. Пробурив грунт до артезианской воды можно наслаждаться ее чистотой. Но сложность вызывает не принятие решения, а монтаж трубопровода.
Проектирование
Это первый этап, но самый важный. Помимо графической схемы автономного водоснабжения придется произвести расчеты. Учитывается потребность в холодной и горячей воде. От этого зависит диаметр труб. Оборудование выбирается, исходя из мощности (производительности). Это объем жидкости, перекачиваемой в час.
Не нужно забывать, что воду необходимо поднять на поверхность, передать по трубопроводу и создать в системе давление, которое должно быть для работы газовой колонки. Обратный клапан в системе нужен для того, что она не опустошалась, когда насосное оборудование не функционирует. Потребуется кран для сброса давления и стравливания воды.
Где бы не находился частный дом, трасса прокладывается ниже уровня промерзания грунта. На дно траншеи укладывается щебень для дренажа. При этом должен быть выдержан наклон в сторону колодца или скважины на случай, если потребуется стравливать систему самотеком. Трубы могут быть:
- Металлическими. Подвержены коррозии, обрастают внутри, но подходят для систем любого типа, включая отопительную.
- Пластиковыми. Не подходят для передачи горячей воды. Стоят дешево, не ржавеют, служат долго.
- Металлопластиковыми. Оптимальный вариант, подходящий для любых систем. Не поддаются коррозии, выдерживают температуру до 95 градусов по Цельсию.
Если речь идет о монтаже своими руками нужно учитывать, что для пластика и металлопластика потребуется специальное оборудование и переходники. Железную трассу можно смонтировать ручными приспособлениями. Правда, нужен будет сварочный аппарат, болгарка и инструмент для нарезания резьбы. Если сборка вызывает сложность, можно обратиться к специалистам.
Последовательность включения оборудования
Есть множество публикаций, которые описывают системы водоснабжения частного дома. Львиная доля посвящена характеристикам и эксплуатационным параметрам. Но как смонтировать автономный водопровод? Все элементы подключаются в определенной последовательности.
От источника до потребителя вода проходит следующие контрольные точки:
- Забор воды в систему производится из колодца или скважины.
- Сетчатый фильтр исключает попадание песта и грунта в систему.
- Обратный клапан не дает возможности жидкости стекать в обратном направлении при отключении насоса.
- Фильтр грубой очистки улавливает твердые взвешенные частицы и илистые загрязнения.
- Насосная станция обеспечивает принудительную циркуляцию воды при необходимости.
- Блок контрольно-измерительных приборов позволяет контролировать рабочие параметры водопровода.
- Фильтр тонкой очистки абсорбирует оставшиеся примеси, оставляя воду чистой, пригодной для употребления.
Набор средств, с помощью которых реализована система автономного водоснабжения частного дома может отличаться, но эти отличия незначительны. Главная особенность – в первую очередь прокладываются трубы. А для этого нужен готовый проект трубопровода с расстановкой всех необходимых элементов.
Скважина
Современный, полностью безопасный и удобный источник воды для вашего участка. Скважина бурится до артезианских вод, потому ее еще называют артезианской. Глубина скважины может достигать глубины в 200 м., однако в большинстве случаев достаточно пробурить на 30-50 м.
Необходимо помнить, если глубина будет недостаточной, могут быть сезонные перебои, а также снижение качества во время паводков и дождей.
Основными достоинствами скважины необходимо считать следующие моменты:
- Бурить можно на любом участке, в любом удобном для вас месте;
- Вода экологически чистая и полностью безопасна для здоровья;
- Использовать специальные фильтры нет необходимости. Это упрощает систему и позволяет сэкономить;
- Долговечность источника;
- Качество мало зависит от сезонных и погодных условий;
- Возможность круглогодичного использования.
Однако, при всех своих достоинствах, у скважины имеется ряд недостатков:
- Невозможность самостоятельного бурения. Вам однозначно потребуется обратиться в специализированные организации;
- Высокая цена буровых работ;
- Необходимость оформления специальных документов для бурения скважины;
- Сложность в обслуживании.
Тем не менее, скважина пользуется оправданной популярностью среди дачников, поскольку это удобный, возобновляемый и чистый источник вкусной, качественной воды.
Водозабор
Один из самых важных вопросов, который нужно решить, перед тем как провести водопровод на даче своими руками, это откуда будет поступать вода в систему. Стандартных вариантов водозабора три – централизованное водоснабжение, колодец, скважина, каждый из них имеет свои нюансы, достоинства и недостатки.
Централизованное водоснабжение
Зато самому придется в этом случае устанавливать разводку только дома. Не придется беспокоиться о ремонте труб, о перепадах давления, системе глобальной очистки воды – достаточно домашних фильтров. Но, опять же, собственник должен будет платить за водопотребление и отведение по счетчикам.
Колодец
Водопровод на даче из колодца своими руками – это, пожалуй, наиболее простая схема обустройства. Колодцы есть на многих участках, а если нет, то выкопать и установить его – не проблема, к тому же, это не потребует больших финансовых и временных затрат. Обычно этот вариант подходит в той местности, где глубина залегания грунтовых вод не превышает десяти метров.
Однако надо позаботиться об утеплении самого колодца и насоса. Для первого используется пенопласт, вспененный полиэтилен и другие изолирующие материалы. Что касается насоса, то для его защиты зимой понадобится кессон – наружный приямок, теплый при этом.
При всей простоте дачного водопровода из колодца у него есть и недостатки. Так, вода в колодце чаще всего загрязнена, поэтому если вода будет использоваться не только для хозяйственных, но и питьевых нужд, следует позаботиться о качественной системе фильтрации. Кроме того, при большом расходе воды не каждый колодец будет в состоянии его покрыть. Например, если требуется ежедневный полив участка, водоснабжение дома, бани, стирка, наполнение бассейна.
Скважина
Своя скважина на участке – отличный вариант для решения проблемы с водой. Можно обустроить и водопровод на даче из скважины. Таким образом забирается вода, залегающая ниже, чем та, что поступает в колодцы. Она, как правило, более чистая. Для устройства водопровода на даче от скважины понадобится погружной насос – оборудование более дорогое и сложное, чем поверхностное.
Скважина, особенно обустроенная без помощи специалистов, нередко может огорчить неполадками. О причинах сбоя ее в работе подробнее можно узнать здесь.
Однако водопровод из скважины – это на века. При правильной эксплуатации конструкция прослужит долгие годы и позволит обеспечить жидкостью всю семью, приусадебный участок, хозяйственные постройки.
Чтобы защитить воду в скважине от замерзания зимой, устанавливается кессонный колодец из кирпича, бетона или других материалов. Подробнее об утеплении источников воды зимой вы сможете прочесть здесь.
Что нужно знать для расчетов схем водоснабжения дачи
- До начала монтажа водопроводных коммуникаций, следует выполнить эскиз прокладок с обозначением длин участков и их диаметров. Эскизный план пригодится для обеспечения точности монтажа, расчета номенклатуры и количества материалов.
- Чтобы выбрать по сечению трубы схемы дачного водопровода, сложных расчетов не требуется. Для основной подводящей магистрали достаточно Ø 32-40 мм, в системе полива хватит Ø 20-25 мм, для внутридомовой разводки – Ø 16-20 мм.
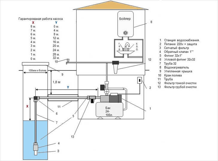
- Подбор насосного оборудования зависит от конфигурации системы. Так, если подачу и рабочее давление обеспечивает один насос (насосная станция), то сила его напора будет равна сумме высоты столба жидкости от зеркала водозабора до верхней точки водопотребления, плюс запас на комфортное пользование и потери в системе.
Схема водоснабжения от насосной станции
Примерный расчет характеристик насоса
На двухэтажной даче проживает семья из 5-х человек, поливная площадь занимает 500 м2 (пять «соток»), расстояние до воды в колодце максимум 5 метров, до колодца от дома 20 м.
Требуемый напор насоса:
- преодоление подъема от поверхности воды до уровня земли – 5 м;
- подъем на второй этаж – 5 м;
- потери на сопротивление водопровода из расчета на 10 м трубы 1 м подъема, т.е. еще 2 м;
- создание давления на выходе системы 3 бар, что соответствует напору 30 м.
Напорная характеристика насосного оборудования – не менее 42 м.
Требуемая производительность насоса:
Из расчета суточной потребности на бытовые нужды 250 л/чел получаем на 5 чел – 1250 л или 1,25 м3. На полив в среднем потребуется до 2,5 м3. Производительность насоса ≈ 4 м3/сутки.
Плюсы и минусы
Полимерные трубы, как и изделия из прочих материалов, имеют свои положительные и отрицательные стороны. Среди несомненных плюсов следует отметить: • Устойчивость к воздействию сырости. Пластик, в отличие от металла, не подвержен окислению и ржавчине.
• Большой выбор всевозможных вариантов пластиковых труб. Это даёт возможность подобрать необходимый для вашего случая тип изделия.
• Невысокая стоимость. Пластиковые трубы под воду обычно стоят значительно ниже, нежели их металлические аналоги соответствующего диаметра.
• Морозостойкость. Пластиковые Т., за исключением ПНД, способны выдерживать, без ухудшения технических характеристик, понижение температуры окружающего воздуха до -10оС. Это связано с их эластичностью. Даже при замерзании внутри них воды, они не разрываются, а просто увеличиваются в диаметре. Так что, после оттаивания воды не произойдёт потопа.
• Малая масса, по сравнению с металлическими трубами. Данный фактор особенно актуален при транспортировке и монтажных работах.
• Длительный срок эксплуатации. Время гарантированной безаварийной службы пластиковых труб составляет в среднем 45-50 лет. А в отдельных случаях, по заверениям производителей, он может достигать и столетия. Впрочем, на деле это проверить ещё не удалось, поскольку массовое внедрение пластика в сантехнических системах началось не более двух-трёх десятилетий назад.
• Сопротивляемость гидроударам. Вследствие своей эластичности и способности к кратковременным деформациям, полимерные изделия способны без ущерба переносить гидроудары. В системах, собранных из металлических Т. подобные происшествия зачастую приводят к разрывам.
• Простота сборки. Если для монтажа водопровода из металлических Т. потребуются услуги электросварщика высокой квалификации, то собрать систему из пластиковых Т. может любой домашний мастер-самоучка. Стыковка отдельных пластиковых элементов не представляет труда, главное – правильно составить схему сборки трубопровода.
• Уменьшенная вероятность засоров. Из-за гладкой внутренней поверхности пластиковых труб, в них практически не образуется налёта. В то время, как в металлических аналогах со временем накапливается значительный слой ржавчины и солей, уменьшающих внутренний просвет, и приводящих к засорам и разрывам.
К минусам пластиковых труб следует отнести:
- Низкая устойчивость к ультрафиолету. Под действием солнечного излучения пластик желтеет, становится хрупким. Поэтому при необходимости прокладки трубопровода на улице, его рекомендуется защищать от солнца.
- Неустойчивость к температурным воздействиям. В отличие от металла, пластик весьма легкоплавок, и любое воздействие на него повышенной температуры неизбежно приводит к деформации и расплавлению. Так, горячая вода сможет деформировать не рассчитанные для неё пластиковые трубы, а весенние пожоги прошлогодней травы на участке – полностью уничтожить пластиковый летний водопровод.
- Низкая устойчивость к механическим воздействиям. Резкие удары и механические нагрузки переносятся пластиком гораздо хуже, чем металлом из-за их физических свойств.
Как видим плюсов у пластиковых труб гораздо больше, нежели минусов. В связи с этим, полимеры являются наилучшей альтернативу металлу. Главное, при выборе материала правильно учесть его условия эксплуатации.
Какие трубы лучше
Систему водоснабжения для дачи можно выполнить из меди. Основное преимущество медных конструкций – их высокий срок службы, равный 70 лет. В то же время медь отличается высокой стоимостью. Такой водопровод может себе позволить далеко не каждый человек.
Можно также выбрать полипропиленовые трубы для дачи. Срок их службы составляет более полувека. Стоимость их достаточно демократична. Универсальным вариантом для водопровода на даче являются конструкции из нержавейки. Срок их службы довольно велик, их можно применять для систем холодного и горячего водоснабжения. Минусом, опять же, является высокая стоимость.
Металлические трубы отличаются высоким сроком службы. Однако они редко применяются при обустройстве частного дома из-за ряда минусов, а в частности:
- Риск возникновения коррозии;
- Риск возникновения отложений;
- При установке потребуется сварочный аппарат;
- Недостаточный уровень экологичности.
Достойной альтернативой для обустройства водопровода на даче являются пластиковые трубы. Рассмотрим их преимущества:
- Стойкость к химикатам;
- Стойкость к появлению коррозии;
- Стойкость к возникновению отложений;
- Срок службы более полувека;
- При транспортировке горячей воды практически не теряется тепло;
- Легкость установки.
Пластиковые трубы – лишь общее наименование множества групп этих конструкций. Какую систему лучше выбрать? Все зависит от ваших потребностей и условий эксплуатации системы. Увидеть все разнообразие этих конструкций вы можете на фото.
Трубы из ПВХ рекомендуется использовать для организации открытой проводки, так как они отличаются нужной жесткостью, а также стойкостью к ультрафиолету. При их монтаже применяется технология склейки.
Полипропиленовые трубы универсальны. Их можно применять для транспортировки и холодной, и горячей воды. С их помощью можно также организовать систему отопления и подземную канализацию. Достоинства у них те же, что и у конструкций из сшитого полиэтилена. При этом, цена изделия ниже. При монтаже применяется сварочное оборудование. Стоит иметь в виду, что при организации транспортировки горячей воды применяются конструкции с металлическим или стекловолокнистым армированием.
Трубы из металлопластика отличаются своей структурой: внешний и наружный полимерный слой. Средний слой выполняется из алюминия. Для организации транспортировки холодной воды применяются конструкции синего или голубого цвета. Если требуется обустроить систему горячего водоснабжения, следует выбрать белые конструкции. Рассмотрим преимущества конструкций из металлопластика:
Стойкость к коррозии;
- Аккуратный внешний вид;
- Легкость;
- Пластичность;
- Большой срок службы;
- Простота установки.
https://youtube.com/watch?v=fKf2kG7gHvw
Вы также можете выбрать трубы из ПВХ. Для обустройства транспортировки холодной воды предназначены конструкции с маркировкой ПВХ, горячей – ХПВХ.
Дополнительные рекомендации
Посмотреть весь ассортимент конструкций для дачи вы можете на фото. Кроме того, у нас на сайте представлено видео с инструкцией по правильному выбору труб. Для обустройства водопровода обычно подбираются конструкции от западных брендов. Доверием пользуются производители из Германии, Чехии, Австрии. При покупке следует обязательно проверить сертификат на изделие.
Общая схема подачи воды
Чаще всего водоснабжение частного дома с водой из уличной скважины организовывается по следующей общей схеме:
- На участке возле коттеджа обустраивается скважина с погружным насосом и кессоном сверху.
- Траншейным способом от нее в дом прокладывается водовод под землей.
- В здании к этой трубе подключается гидроаккумулятор с поплавком, управляющим скважным насосом.
- От накопителя делается отвод с запорным краном и насосной станцией обеспечения подкачки воды в трубопровод ХВС по коттеджу.
- При необходимости собирается контур фильтрования и водоподготовки с обводным байпасом.
- Делается разводка труб подачи воды до сантехники в ванной, туалете и кухне.
- Для горячего водоснабжения отдельно устанавливается бойлер.
Общая схема
Для питья воду из скважины практически во всех регионах России рекомендуется пропускать через фильтры. В одних случаях достаточно грубой очистки от механических примесей, а в других потребуется монтировать системы очищения от железа и снижения жесткости или кислотности. Причем точно определить необходимый набор фильтров получится только по результатам лабораторного анализа.
Если гидроаккумулятор поставить не в кессоне или подвале, а на чердаке, то от подкачивающей насосной станции можно отказаться. При такой верхней разводке вода до сантехнических приборов по водопроводным трубам будет течь самотеком.
По срокам монтажа скважина на приусадебном участке делается за пару дней. Однако прежде чем начинать бурить, необходимо грамотно рассчитать необходимое оборудование и оценить возможности водоносного пласта. В идеале надо предварительно произвести разведывательное бурение. А потом еще и подготовить проект всей системы обеспечения дома водой. Ошибки здесь легко могут привести к загрязнению водоносного горизонта.
Материалы для водопровода
Наиболее востребованными коллекторы ПНД остаются все же для обустройства подачи воды для бытовых или технических нужд на приусадебных участках, дачах и в частных домах.
Благодаря таким системам пользователи получают воду от скважины (от колодца) на даче, используемую в дальнейшем для полива, орошения, наполнения бака летнего душа и т. д. В большинстве случаев с такой целью потребители приобретают коллекторы ПЭ 100 (из высококлассного сырья) и ПЭ 80 (сырье на класс ниже). Так как диапазон рабочих температур изделий варьируется в пределах +40-+15⁰, они идеально подходят для холодного водоснабжения.
Лучше всего для прокладки таких систем подойдут коллекторы, внутренний диаметр которых составляет от 16 до 25 мм.
Эти материалы обладают немалым количеством достоинств, среди которых:
- Надежность.
- Длительный эксплуатационный срок.
- Простой монтаж.
Для прокладки магистрали подачи воды может использоваться разного диаметра ПНД труба. Монтаж водопровода в доме или квартире своими руками при применении полиэтиленовых коллекторов упрощается за счет специальных крепежных деталей (фитингов, муфт). Иногда в качестве соединяющих элементов используются латунные втулки и муфты. Также может осуществляться монтаж полиэтиленовых труб с помощью компрессионных фитингов.
Водоснабжение частного дома из колодца и скважины: прокладка труб
Любая из описанных схем водоснабжения частного дома реализуется при помощи насоса, подающего воду к дому. При этом должен быть сооружен трубопровод, соединяющий колодец или скважину с насосной станцией или накопительным баком. Существуют два варианта укладки труб — только для летнего использования или для всесезонного (зимнего).
Участок горизонтальной трубы может находится или ниже глубины промерзания грунта или его нужно утеплять
При устройстве летнего водопровода (для дачи) трубы можно укладывать поверху или в неглубокие канавы. При этом нужно не забыть в самой нижней точке сделать кран — сливать воду перед зимой, чтобы в мороз замерзшая вода не разорвала систему. Или сделать систему разборной — из труб, которые можно скатывать на резьбовых фитингах — а это — трубы ПНД. Тогда осенью все можно разобрать, скрутить и уложить на хранения. Весной все вернуть.
Прокладка труб водоснабжения по участку для зимнего использования требует больших затрат времени, сил и денег. Даже в самые сильные морозы они не должны замерзать. И решений два:
- уложить их ниже глубины промерзания грунта;
- закопать неглубоко, но обязательно обогреть или утеплить (а можно и то, и другое).
Глубокое заложение
Глубоко закапывать водопроводные трубы имеет смысл, если он промерзает не более чем на 1,8 м. Копать придется еще на 20 см глубже, а потом на дно насыпать песок, в который укладывать трубы в защитной оболочке: они будут подвергаться солидной нагрузке, ведь сверху почти двухметровый слой грунта. Раньше в качестве защитной оболочки использовали асбестовые трубы. Сегодня есть еще пластиковый гофорорукав. Он дешевле и легче, проще укладывать в него трубы и придавать нужную форму.
При укладке трубопровода ниже глубины промерзания приходится копать глубокую траншею длинной на всю трассу. Зато водоснабжение частного дома из колодца и скважины не будет замеразть зимой
Хоть подобный метод требует больших затрат труда, его используют, потому что он надежен. Во всяком случае, участок водопровода между колодцем или скважиной и домом стараются уложить именно ниже глубины промерзания. Трубу выводят через стенку колодца ниже глубины промерзания грунта и в траншее ведут под дом, там поднимают выше. Самое проблемное место — выход из земли в дом, можно дополнительно подогревать электрическим греющим кабелем. Он работает в автоматическом режиме поддерживая заданную температуру нагрева — работает только в том случае, если температура ниже заданной.
При использовании в качестве источника воды скважины и насосной станции, устанавливают кессон. Его закапывают ниже глубины промерзания грунта, в нем же ставят оборудование — насосную станцию. Обсадную трубу обрезают так, чтобы она была выше дна кессона, и трубопровод выводят через стенку кессона, тоже ниже глубины промерзания.
Прокладка труб водоснабжения в частном доме из скважины при устройстве кессона
Закопанный в земле водопровод сложно ремонтировать: придется окапывать. Потому постарайтесь заложить цельную трубу без стыков и сварных швов: именно они дают больше всего проблем.
Близко к поверхности
При неглубоком заложении земляных работ меньше, но в этом случае имеет смысл сделать полноценную трассу: траншею выложить кирпичом, тонкими бетонными плитами и т.п. На этапе строительства затраты значительные, но эксплуатация удобная, ремонт и модернизация — без проблем.
В этом случае трубы водоснабжения частного дома из колодца и скважины поднимаются до уровня траншеи и там выводятся. Укладываются они в теплоизоляции, предотвращающей их замерзание. Для страховки их можно еще и греть — использовать греющие кабели.
Один практический совет: если от погружного или скважинного насоса к дому идет кабель электропитания, его можно упрятать в защитную оболочку из ПВХ или др. материала, а потом прикрепить к трубе. Крепят через каждый метр куском скотча. Так вы будете уверены, что электрическая часть у вас в безопасности, кабель не перетрется и не порвется: при подвижках грунта нагрузка будет на трубе, а не на кабеле.
Герметизация входа в колодец
При организации водоснабжение частного дома из колодца своими руками, обратите внимание на заделку места выхода водопроводной трубы из шахты. Именно отсюда чаще всего грязная верховодка попадает внутрь
Важно выход водопроводной трубы их шахты колодца хорошо загерметизировать
Если отверстие в стенке шахты ненамного больше диаметра трубы, щель можно заделать герметиком. Если зазор большой, его замазывают раствором, а после высыхания промазывают гидроизолирующим составом (битумной пропиткой, например или составом на основе цемента). Промазать желательно и снаружи и изнутри.
Принцип работы и устройство дачного водоснабжения
Итак, давайте попробуем описать общую структуру системы водоснабжение загородного дома, из каких элементов состоит и их особенности.
В самом общем виде мы получим:
Источник. Как было указанно выше, существуют два основных типа источников. Природные, а также другие мы не будем рассматривать в данной статье, поскольку они не имеют широкого распространения, а их использование ограниченно по ряду объективных причин.
Система забора воды. Как правило, это специальный электрический насос. Для колодца возможен ручной вариант, но считать его приемлемым нельзя, поскольку современные условия позволяют выбрать насос нужного типа, качества и цены.
Тем более, вручную наносить воды для бани или поливки очень сложная в физическом плане задача. Таким образом, в качестве системы забора, приемлемым можно считать только электрические насосы или насосные станции.
На что обратить внимание при установке пластиковых окон?
Из чего состоит система подачи воды из скважины в дом
Перед тем, как завести скважину в дом, следует выяснить, что для этого необходимо.
Современные технические и материальные возможности позволяют создать полностью автономную и управляемую автоматикой систему водоснабжения, поэтому мы рассмотрим именно такой вариант комплектации.
Итак, в состав скважинного водопровода входят:
Глубинный насос для скважины. Большинство скважин имеют глубину, большую 8-ми метров, поэтому использовать приходится именно погружной агрегат; Ниппель с двусторонней внешней резьбой, обратный клапан и муфта для соединения выходного отверстия насоса с подъемной трубой; Водоподъемная труба
Здесь важно подобрать изделие, способное выдержать давление соответственно глубине скважины, лучше использовать металлопластиковые или полимерные модели, мы советуем трубы из полиэтилена низкого давления (ПНД); Кабель электропитания двигателя насоса и гермоввод (влагозащитный клемник); Фитинг для перехода от вертикальной трубы к горизонтальной. Это может быть колено или тройник, в зависимости от особенностей разводки труб; Оголовок скважины
Это изделие представляет собой герметичную крышку на винтовых зажимах с выводом для трубы и кабеля, а также с крепежом для страховочного троса; Горизонтальная труба для транспортировки воды от источника к дому. Здесь также лучше использовать ПНД-трубу того же диаметра; Набор фитингов для подключения ресивера: поворотные муфты, угловой фильтр, ниппель. В зависимости от особенностей конфигурации труб этот набор может меняться; Гидроаккумуляторный бак (ресивер) на 200 литров. Лучше использовать пластиковые изделия с мембраной, оснащенные манометром и реле давления; Магнитный пускатель, клеммы которого замыкают/размыкают цепь питания насоса. Управляется пускатель с помощью оперативного тока от реле давления ресивера. Устанавливают для пуска мощных насосов с большими пусковыми токами; Станция управления насосом, позволяющая производить ручной пуск и перезапуск прибора; Датчик уровня воды в скважине и реле аварийного отключения насоса при падении уровня воды ниже допустимого.
Качественный погружной насос способен поддерживать давление в 65 метров при мощности всего 250 Вт.
Кратко о дачных системах орошения
Орошение грядок и плодовых деревьев на даче с помощью труб можно организовать несколькими способами. Выбирая ту или иную систему, необходимо отталкиваться от типа почвы на участке, общих климатических условий и желания (или нежелания) тратить свое время на полив огорода.
Ручной способ увлажнение почвы слишком трудоемок. Загородная дача предназначена для отдыха. Нередко горожане ездят на нее по выходным, чтобы в поте лица там трудиться. Есть те, кому подобное времяпрепровождение даже очень нравится.
Но большинство хочет просто отдохнуть за городом. Однако небольшой огород, яблони и смородина на даче есть практически у каждого. И их надо поливать.
Все системы искусственного орошения дачного участка делятся на два вида: автоматические и полуавтоматические – первые подразумевают перекладывание контроля над процессом поливки полностью на автоматику, а вторые частичное участие человека
По способу подачи воды различается три вида систем неручного полива:
- Капельная поверхностная.
- Внутрипочвенная.
- Дождевание (разбрызгивание).
Технология создания «искусственного дождя» является самой распространенной. Для устройства такой системы на дачном участке необходимо установить несколько роторных дождевателей и подвести к ним трубы водопровода. Однако воды такие разбрызгиватели тратят слишком много.
Часть ее просто испаряется, не долетев до почвы. Эта разновидность дачной ирригации в основном предназначена для поливки больших по площади газонов.
Два других варианта систем автополива подразумевают подачу влаги в грунт или на него непосредственно рядом с поливаемым растением. Для этого используются перфорированные трубы, капельницы и баблеры. Подобный способ орошения более экономичен в плане расхода воды, но из-за большой протяженности водоводов более дорог в устройстве.
Для внутрипочвенной поливальной системы трубопровод с перфорацией придется закапывать в землю на глубине 20–30 см, а для поверхностной трубы можно уложить на грунте
Все подробности о выборе труб для устройства капельного полива вы найдете в статье, посвященной этому интересному вопросу.
Трубы для всех видов полива огорода выбираются по диаметру в диапазоне от 25 до 32 мм. Если давление в центральном водопроводе на даче низкое или вода подается в систему из бака самотеком, то сечение должно быть ближе к верхней границе. В противном случае можно сэкономить, взяв трубы и фитинги диаметром в 25–27 мм.
При меньших величинах трубопровод будет работать неэффективно, поливая землю слишком долго. А при больших размерах он окажется излишне дорогим удовольствием. Поток воды все равно будет заполнять такую трубу только наполовину. А трубные изделия большого диаметра стоят заведомо дороже своих более тонких аналогов.
Правила и ориентиры выбора шланга для полива культурных растений и зеленых насаждений на дачном участке изложены в статье, которую мы рекомендуем прочесть.
Что учитывать при монтаже
Перед приобретением и установкой счетчика необходимо обратиться в организацию, занимающуюся предоставлением услуги по подаче воды, поскольку в некоторых областях монтаж водомеров осуществляется инженерами ЖКХ или подрядчиками с лицензией на выполнение данных работ. В случае если самостоятельная установка водомера разрешена, необходимо составить юридический акт, после получения которого директор компании предоставит ряд технических норм, необходимых для подключения счетчика. Для самостоятельной установки прибора необходимо приобретать только сертифицированный товар.
Монтаж водомера — ответственное мероприятие, поэтому при подключении счетчика к водопроводу нужно учитывать следующие требования:
- Счетчик должен располагаться как можно ближе к центральной водопроводной трубе. Именно такое расположение позволит убедить организацию по водоснабжению в том, что нет возможности дополнительного подключения к водопроводу до счетчика.
- Перед монтажом водомера необходимо установить фильтр механической очистки, защищающий прибор от грязи и ржавчины.
- Счетчик для воды можно устанавливать в месте, в котором температура не опускается ниже +5°С (тогда водомер не сможет замерзнуть). При понижении показателя до +4°С плотность воды достигает своего максимума, а это может отразиться на правильности показаний прибора по той причине, что он замерз.
- Надо позаботиться о строительстве добротного колодца, в котором планируется прикрепить прибор. Без него водомер не опломбируют, и показания на приборе не учтутся при оплате услуг по подаче воды, что повлечет за собой судебный иск.
Также существует такой вариант, как утепленный колодец. Для того чтобы установить водосчетчик, необходимо соорудить колодец, в котором он будет установлен, а также определиться с вопросом — как утеплить сооружение, чтобы прибор для контроля воды не замерз при минусовой температуре. Обычно для строительства колодца роется котлован размером 1,2х1,2 м глубиной в 1 м. Нужно продумать, какими материалами необходимо утеплять колодец, чтобы в зимний период он не замерз.
Колодец будет строиться из кирпича или блоков, которые придется утеплять, поэтому желательно изначально расширить яму до размера 1,7х1,7х1,3 м. Иногда глубина расположения центральной магистрали может быть и больше, но в любом случае расстояние от дна колодца до счетчика должно составлять не менее 10 см.
Колодезный пол необходимо забетонировать, поскольку под кирпичные стены нужна прочная основа. Нагрузка на колодец будет незначительной, поэтому толщину бетонной стяжки можно сделать в пределах 10 см. После сооружения фундамента можно переходить к строительству стен, а в конце работы, чтобы счетчик не замерз зимой, к утеплению сооружения. Когда все готово — можно перейти к установке.
Если вы решили самостоятельно снять стоявший и установить новый счетчик для учета расхода воды в частном доме, следует внимательно прочитать инструкцию, прилагаемую к прибору, где указаны не только основные параметры, но и допустимая протяженность труб до и после водомера. Оборудование будет качественно работать на протяжении многих лет, только если будут соблюдены правила установки.
Особенности летних водопроводных систем
Летний водопровод на даче
Прокладка летнего водопровода достаточно простая задача, с которой вполне можно справиться самостоятельно. Подобные системы обычно отличаются несложной конфигурацией, они могут быть смонтированы с применением различных доступных по стоимости материалов.
Основная особенность подобной сети заключается в том, что сезонность применения позволяет отказаться от прокладки линий на глубине, превышающей уровень промерзания грунта в зимний период. При понижении температуры до отрицательных значений сеть отключается от источника водоснабжения и демонтируется (в случае применения разборного варианта) или выполняются мероприятия по сливу из нее оставшейся воды во избежание промерзания.
Уплотнение и заделка швов
Наиболее дешевый способ это веревка из натуральных материалов, промазанная жидким стеклом или фиброрезиной (Киилто Файбер пул), и уложенная в межкольцевой шов. Намного эффективнее использовать специальные искусственные уплотнительные ленты (RubberElast).
Заделка может производиться как внутренних, так и внешних швов. Для этого может применяться обычный цементный раствор с добавлением жидкого стекла или специализированные гидрофобные составы типа цементной шпатлевки Плитонит Аквабарьер.
Целесообразно использовать комбинированные методы и наносить гидроизолирующую шпатлевку на уплотненный стык по армированной сетке для предотвращения растрескивания шва при смещении колец.
Так же возможно использование битумно-полимерной изоляции наплавляемой на стыки колец снаружи или изнутри колодца.
Особенности монтажа
Определившись с особенностями водопровода, можно приступать к подготовке и монтажу выбранных конструкций.
- Составляем план. Схема обустройства дачного водопровода должна учитывать все особенности участка. Также необходимо сделать все необходимые замеры.
- Выбираем материалы. Выбирать и приобретать материалы следует, только определившись, какие трубы вы будете использовать и сколько их нужно.
- Освобождаем участок. Во время монтажа ничего не должно мешать процессу.
- Приступаем к земляным работам. Этот пункт актуален, если строится капитальный водопровод. Если система поверхностная, траншеи рыть не нужно.
- Осуществляем монтаж труб. Трубы укладываются на места, скрепляются между собою.
- Подключаем все системы. Далее можно подсоединять систему к насосной станции и проверять ее действие.
Если после монтажа все работает по самой хорошей схеме, можно закапывать траншеи, не забыв об утеплении, конечно.
Полезно будет почитать:
Душ на дачном участке своими руками После приятных, но утомительных дачных хлопот так хочется смыть всю усталость этого дня под теплыми струями воды….
Как сделать водопровод в частном доме своими руками
Водоснабжение может быть организовано с помощью двух видов насосов:
- поверхностные модели, не погружаемые в источник водозабора, обеспечивают подъем воды с глубины 8-9 метров, потому их используют в колодцах;
- погружные модели размещают непосредственно в скважине или колодце, при этом их мощность позволяет поднять воду на высоту более 200 метров.
Проведение от колодца
От действующего или вновь построенного колодца к дому прокапывается траншея, дно которой должно находиться ниже отметки промерзания грунта в данной местности. Далее на дно траншеи укладывается 32-миллиметровая труба (медная, стальная, полипропиленовая или металлопластиковая) под небольшим уклоном по направлению к источнику. Уклон необходим для того, чтобы предотвратить застой воды в трубопроводе. Труба заводится в подвал сквозь отверстие в фундаменте, которое утепляется. Иначе в сильные морозы в этом месте может произойти перемерзание.
Трубопровод, идущий от колодца до подвала частного дома, укладывается в траншею, вырытую с учетом глубины промерзания грунта в данной местности
От скважины
Также обеспечить подачу воды в дом можно из автономного источника, в качестве которого обычно выступает скважина или колодец. Воду из открытых водоемов рекомендуется использовать лишь в технических целях, для питья и приготовления пищи она не годится.
Видео: как обеспечить себя чистой водой
Прокладку коммуникаций от скважины, защищенной от замерзания и попадания загрязненных сточных вод кессоном (металлической емкостью), начинают со сборки пучка из кабеля, страховочного троса и водоподающей трубы, обклеенной алюминиевым скотчем. Затем к ним прикрепляют погружной насос и опускают его в скважину. На поверхности шнур оборачивают утеплителем, после чего приступают к его укладке на дно полутораметровой траншеи, выкопанной от скважины до дома.
Схема монтажа водоснабжения частного дома из скважины, пробуренной до водоносного горизонта лицензированной компанией с помощью мощной роторной буровой установки
Заводят трубу и кабель в дом, затем ставят:
- бак, который позволит включать насос по мере необходимости;
- блок управления, предназначенный для защиты системы от перепадов напряжения в сети, а также от перегрева.
Полезные советы
При эксплуатации схемы дачного водопровода вам пригодятся следующие рекомендации:
- Для обогрева водопровода зимой лучше подойдет саморегулирующий греющий кабель. Он дороже резистивного, но экономичнее в эксплуатации и его удобней монтировать.
- Прежде чем закапывать коммуникации, нанесите их точную привязку на плане участка. Сделайте фото узлов и труб, скрываемых в земле или за отделкой. Распечатайте и сохраните. Пригодится на будущее в случае ремонта или реконструкции.
- Пластик нельзя отогревать открытым огнем паяльной лампы. На случай, если трубопровод перемерзнет, используйте монтажный фен. Помимо прогрева коммуникаций прибор еще пригодится и для других хозяйственных нужд.
- Чтобы автоматически перекрывать подачу воды в бак запаса, не обязательно покупать дорогие поплавковые клапаны. Подойдет от простого бачка унитаза. Стоит он недорого, а служит от пяти лет и дольше.
В заключение интересное видео, из него также можно почерпнуть много интересного об устройстве водоснабжения дачи.
Подключение ресивера
Как мы уже говорили, система водоснабжения обязана не только доставить воду потребителю, но и обеспечить приемлемые для обычной эксплуатации сантехнического оборудования производительность и давление. Погружной насос способен создать высокое давление, но оно будет непостоянным, и при резком запирании крана может случиться гидроудар.
Помимо этого, в случае если насос подключить к водопроводу напрямую, то при каждом отпирании крана в любом сантехническом приборе (раковина, мойка, ванная, унитаз и т.д.) будет включаться двигатель помпы. Это отрицательно скажется на сроке работы двигателя, механике насоса, и узлах отключения питания на реле либо пускателе.
Исходя из этого нужен гидроаккумулятор, который будет накапливать воду под давлением и подавать ее потребителю. В то время, когда давление в баке устройства упадет ниже определенного уровня, сработает реле давления, которое замкнет цепь питания двигателя насоса, и он закачает нужный количество воды. В случае если емкость бака будет 100 литров и более, то для средней по численности семьи количество запусков насоса будет маленьким, и он прослужит долго.
Мы остановились на вводе трубы в дом. Идем дальше:
Ввод трубы соединяем через муфту с пятивыводным штуцером. Муфту накручиваем на дюймовое отверстие через ниппель с накидной гайкой;
На входное отверстие ресивера накручиваем угловое колено, которое продлеваем отрезком трубы нужной длины. В случае если имеется возможность, вместо трубы и колена используем гибкий шланг с краном;
Конец трубы ресивера соединяем через шаровый кран с накидной гайкой с любым свободным дюймовым отверстием штуцера. В случае если использован шланг с краном, то его конец через переходник («американка») на отверстие штуцера;
- К отверстию дюйма подключаем манометр;
- К незанятому отверстию дюйма подключаем реле давления;
Оставшееся незанятым дюймовое отверстие распределительной муфты соединяем через кран с накидной гайкой с водопроводом, идущим к потребителю;
- Кабель питания насоса подключаем к клеммам реле, каковые будут создавать отключение и пуск. Схема коммутации несложная и обрисована в инструкции к реле. В случае если нужен пускатель, тогда через реле производится запитка его катушки, а насос подключается к клеммам пускателя;
- Раздельно запитываем кабель насоса через ручной включатель, рассчитанный на пусковой ток двигателя с двойным запасом;
Посредством ручного тумблера производим запуск насосного оборудования и ожидаем, пока наполнится бак, и система машинально отключит питание двигателя помпы. Засекаем по манометру давление отключения. После этого открываем пара кранов и спускаем воду , пока система снова не запустит насос, кроме этого фиксируем значение давления;
Сверяем полученные значения с паспортными чертями ресивера, и, в случае если нужно, настраиваем реле.
Источники водоснабжения
Очень важно принять верное решение при выборе источника воды, чтобы он был удобным, а вода – максимально чистой и безопасной.
- Колодец. Простой, известный, недорогой и старый вариант обеспечения водой. Обустроить его можно, только если есть пригодный слой воды. Он должен находиться на глубине до 15м. Колодец может обеспечивать водой до 50 лет, получать ее возможно даже без электричества. Однако колодцу требуется периодическая чистка, в него попадает грязная вода с поверхности, поэтому необходима качественная изоляция всех стыков.
- Скважина. Существует несколько видов скважин. Первая – «на песок», берет воду с верхних слоев, глубина до 50 м, запас до 500 л/ч, прослужит она около пяти лет. Часто засоряются фильтры, если есть подземная река, то фильтры не засоряются, система прослужит минимум 20 лет, а источник неисчерпаемый. Вторая – «артезианская», подает воду из слоев, располагающихся на глубине до 1000 м и даже больше. Вода чистая, запас может составлять от 1500 л/ч и быть даже не ограниченным.
Две схемы устройства скважины для обеспечения дома водой Источник sovetclub.ru Смотрите также: Каталог компаний, что специализируются на водоснабжении и канализации.
В частных домах их делают редко с максимальной глубиной до 135 м, поскольку для скважин требуется специальное разрешение и достаточно дорогая регистрация, а само обустройство может затянуться до месяца. К преимуществам таких скважин относится то, что в них не попадают грунтовые или верховые воды, срок службы около 50 лет. Минус в необходимости провести ряд расчетов, чтобы правильно подобрать оборудование.
- Родник. На некоторых участках встречаться родники, используемые для обеспечения высококачественной, чистой водой. Особенность такого источника в его практически неисчерпаемом запасе воды и хорошей производительностью, однако, встречаются они очень редко.
- Центральное водоснабжение. Если рядом проходит центральная магистраль, то можно подключиться к ней. Это обеспечит достаточный напор воды, но не всегда она будет хорошей очистки. Для подключения требуется подать заявление, проект и получить разрешение санэпидемстанции. На это может уйти несколько месяцев и обойдется достаточно дорого, причем, это будут не разовые расходы – за использованную воду надо будет платить, как в квартире. Все работы по подключению проводятся только сотрудниками водоканала.
Поверхностные насосы могут работать на глубинах не более 8 -10 метров, поэтому редко используются для обустройства скважин
Кроме того, центробежные механизмы отличаются оптимальным соотношением цена/качество. Вихревые насосы считаются наиболее практичным вариантом. Помимо невысокой стоимости они привлекают предельной простотой конструкции и неприхотливостью в эксплуатации и обслуживании. Основа устройства – мембрана, по одну сторону которой находится жидкость, по другую – вибратор.
После включения последний приходит в движение и заставляет деформироваться мембрану, тем самым создавая разность давлений. Что, в свою очередь, запускает процесс перекачивания жидкости.
Механизм лишен вращающихся элементов и подшипников, которые особенно уязвимы и требуют постоянного контроля и смазки. Отсутствие вращающихся элементов существенно уменьшает нагрев устройства и продлевает срок его эксплуатации.
Для артезианских скважин лучшим выбором станет высокопроизводительный глубинный насос. Они специально предназначены для работы на больших глубинах, где не смогут функционировать поверхностные насосы, даже оснащенные эжектором.
Установка в скважину глубинного прибора достаточно сложна, так же, впрочем, как и его извлечение. Грамотно выбранное и установленное качественное устройство будет работать десятки лет.
Для работы на больших глубинах используются погружные насосы, которые опускаются в жидкость и функционируют внутри скважины
Более дешевый фальсификат с такой нагрузкой вряд ли справится и потребует ремонта. Однако надо понимать, что в случае с глубинным насосом стоимость только его демонтажа может быть вполне сопоставима со стоимостью прибора. Поэтому надо приобретать только качественное устройство.
Галерея изображений
Фото из
Оборудование для дачного водопровода
Трубы ПНД в системе водоснабжения
Блок управления насосом
Фильтры для обработки воды
Специалисты выделяют несколько критериев, которые должны быть обязательно учтены при выборе механизма.
Общая глубина выработки и уровень воды в ней
Ключевые характеристики при выборе насоса. В технической документации обязательно указывается оптимальная глубина, для работы на которой предназначено устройство.
При несоблюдении этого требования прибор будет работать неэффективно и может быстро выйти из строя. В паспорте скважины должны быть указаны и ее глубина и уровень воды. Их остается только сравнить с характеристиками насоса.
Если таких данных нет, можно воспользоваться очень простым способом для измерения глубины сооружения. Берем длинную сухую веревку, привязываем на ее конец грузик и опускаем в скважину. Спускаем веревку вниз, пока грузик не коснется дна. Извлекаем тросик. Замеряем сухую часть – это будет расстояние от верхней части до уровня воды. Мокрая часть – высота водного столба.
Примерный дебет водозаборного источника
Так называется масса воды, которую можно получить из скважины за определенный промежуток времени. В паспорте бурильщики указывают эту величину, но если нет, проводим примерные подсчеты.
Полностью выкачиваем воду из скважины и замеряем время, за которое мы это сделали. Затем измеряем время, за которое скважина наполнится водой. Делим второй результат на первый и получаем приблизительный дебет, которого будет достаточно для выбора насоса.
Как определить дебет скважины и выбрать насос, продемонстрирует видео:
Расчетная потребность в воде
Разные насосы могут подавать воду со скоростью от 20 и до 200 л в минуту. Чтобы не переплачивать за более мощную модель, важно правильно рассчитать собственную потребность в воде.
В среднем считается, что одному человеку требуется порядка 200 литров воды в сутки, таким образом, для семьи из трех-четырех человек нужен насос производительностью от 30 до 50 литров в минуту.
Некоторые предпочитают взять устройство с «запасом» мощности, что неизбежно отразится на его стоимости. Если планируется, что насос будет работать не только на обслуживание домашних нужд, но и на полив, следует рассчитать прибавку к его мощности.
Она будет зависеть от размеров участка, но в среднем должно хватить около 2000 литров в день. Таким образом необходимо увеличить потребность в воде на 40-50 л/мин.
Насосы имеют разную производительность, чтобы подобрать нужную модель, важно правильно определить суточную потребность в воде
Необходимый для работы приборов напор
В паспорте насоса обязательно указывается напор. Чтобы рассчитать необходимый напор, прибавляем к выраженной в метрах глубине своей скважины еще 30. Так мы получим высоту водного столба.
Полученный результат увеличиваем еще на 10% и получаем искомую величину. Сравнивая ее с данными насоса, выбираем модель. Если точного совпадения нет, «двигаемся» в сторону увеличения.
Диаметр насоса должен точно соответствовать диаметру пробуренной скважины, иначе не избежать проблем с монтажом и эксплуатацией устройства
Диаметр пробуренной скважины
Еще одна важная величина, определяющая мощность насоса. Как и другие, ее можно взять в паспорте скважины или замерить самостоятельно. При этом нужно учесть, что диаметр скважины нужно выразить в дюймах, где дюйм равен 2,54 см.
Подавляющее большинство насосов предназначены для работы в 4-дюймовых скважинах. Для 3-дюймовых, скорее всего, придется заказывать насос в каталоге.
Требования СЭС по воде
Для того, что бы к нам никто не прицепился, надо знать требования по воде.
После изготовления и подвода воды в помещение надо обязательно взять пробы и отнести их на проверку:
- По платиново-кабельтоаой шкале у нас не должна быть бесцветность более 30-ти процентов;
- Не должно присутствовать посторонних запахов и другого цвета;
- Процент нитратов должен быть не более десяти;
- Не должно быть бактериальной палочки более 10-ти на один литр жидкости.
Сезонные варианты систем водопровода
Для обустройства локальных систем водоснабжения могут использоваться различные варианты. Учитывая свои потребности и варианты проживания владельцы загородных участков при отсутствии централизованных коммуникаций могут самостоятельно обустроить свои участки.
Летняя конструкция
Схемы летнего водопровода представлены системами:
- разборными;
- стационарными.
Подключение летнего водопровода
Разборная конструкция предельно проста в монтаже и эксплуатации. С приходом теплого сезона можно смело установить необходимый набор элементов на участке.
Конфигурация из пластиковых труб и шланг прокладывается поверх земли в необходимых направлениях. Конструкция будет отличаться высокими показателями надежности при использовании качественных соединительных переходников и вентилей.
Стационарная конструкция представляет собой обычную систему водопровода проложенной в земле. Глубина закладки может быть не существенной. В необходимых местах выводятся водоразборные краны. Малая глубина залегания всегда позволит переориентировать такую систему в летний сезон.
Однако следует учитывать, что при заморозках система может быть повреждена. Поэтому обязательно должен присутствовать некоторый уклон магистрали для возможности освобождения системы.





















